Alexallen logotypeAlexallen logotype white

Shopping Cart

Your Cart is Empty

Close cart
29
0

Hudson Street Loft

Hide InformationShow Information

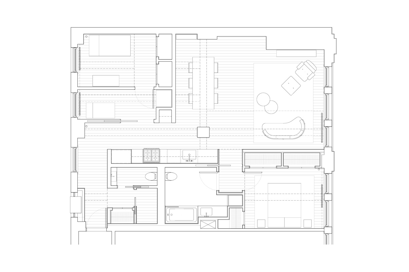
This apartment presented a distinctive design challenge: at just 1,000 square feet, it needed to house a family of four while preserving the openness and character of a loft. When purchased, the unit retained much of its original state as a raw artist’s studio—its unfinished qualities offering both constraints and inspiration.

To maximize space, the galley kitchen was placed within a circulation zone—eliminating underutilized hallways and allowing the space to serve multiple functions—while also accommodating the building’s requirement that plumbing be confined to the single allowable “wet zone.” This move created a generous living and dining area and positioned the kitchen as the central spine of the home. Two compact children’s bedrooms were also introduced, designed with oversized pocket doors that can open fully to the kitchen, to one another, or close entirely for privacy.

location

Manhattan (Tribeca)

project size

1000 SF

Photo Credit

Brooke Holm

Press & Awards

AIA Brooklyn Merit Award

The Architect's Newspaper

Throughout the apartment, textures and materials were chosen to heighten the sense of richness and tactility. In the kitchen, this interplay is especially evident—honed Trambisera marble meets plain-sawn white oak, while the rough fireproofing on a nearby column is left exposed. 

Alexallen 100hudson 0467 1400 xxx
Plan 2 1400 xxx
Alexallen 100hudson 0465 1400 xxx
Alexallen 100hudson 0242 1 1400 xxx
Alexallen 100hudson 0262 1400 xxx

A wood-lined vestibule forms the threshold to the primary suite, where a pocket door allows the bathroom to serve a dual role—functioning as a private en-suite when closed, or as an accessible bath for the main living spaces when open. This flexible arrangement makes full use of every inch of the apartment, ensuring no space goes unused. 

Alexallen 100hudson 0276 1400 xxx
Alexallen 100hudson 0451 1400 xxx
Alexallen 100hudson 0290 1400 xxx
Alexallen 100hudson 0321 1400 xxx

The primary bathroom continues the exploration of material contrasts. A custom vanity, crafted from Rosa Aurora Macchia Vecchia marble and a tub fully clad in the same stone pairs with natural oak and stone penny rounds.

Alexallen 100hudson 0344 1400 xxx
Alexallen 100hudson 0338 1400 xxx
Alexallen 100hudson 0477 1400 xxx

The vaulted powder room nearby is finished with terracotta plaster walls and a custom marble sink, bringing warmth and drama to the compact space. 

Alexallen 100hudson 0500  1400 xxx
Alexallen 100hudson 0183 1400 xxx

The children’s rooms are tucked just beyond the kitchen. Positioned side by side, they can be opened to one another to create a larger shared space, or closed off for privacy as the children grow. 

Alexallen 100hudson 0195 1400 xxx
Alexallen 100hudson 0216 1400 xxx
Alexallen 100hudson 0234 1400 xxx
Alexallen 100hudson 0365 2 1400 xxx
Alexallen 100hudson 0444  1400 xxx

Every decision was driven by the goal of making a compact footprint feel expansive, layered, and deeply personal. By treating circulation as living space, celebrating material richness, and crafting flexible rooms for a growing family, the design transforms 1,000 square feet into a home that feels generous, expressive, and distinctly its own.

Alexallen 100hudson 0382 1400 xxx
Alexallen 100hudson 0460 1400 xxx
View All Architecture